CONCEPT
プロジェクト開発コンセプト・Forest Court ASAGAYA (FCA)
LOHASな生活を演出する1LDK

LOHASを楽しむLDK
本物件の所在地は、昔ながらの緑多き立地で、自然を感じやすいエリアです。その一角に佇む、Forest Court ASAGAYA(FCA)は、「緑多き自然を日常生活の一部として感じられる」ことを意図し設計されました。
MORE
<1Fのテーマ>
--内部と外部の空間一体性と広さの「実感」—
101
102

1Fリビングの特徴は、リビング眼前に広がる南専用庭(約7.5畳)とLDK(約12畳)を統合した内外空間(合計19.5畳)の一体性にあります。その一体性が効果的に実感できるよう3つの工夫を凝らしています。
工夫① 内部と外部の境目に幅3mの特大窓を設け、その3m幅を維持しつつ最大3.8mまで外部空間の奥行きを広げた工夫。
工夫② 3m幅特大窓の枠を濃焦茶色に、外部空間を囲む塀も濃黒色にと、濃い色で統一感をもたせることにより、黒・焦茶基調の「額縁」に囲われた「外部空間の絵」が、白壁の内部空間に向い引き寄せられる錯覚を覚えさせ、「内外空間の一体性」が意識されやすくなる工夫。
工夫③ 融合空間の対角線距離は長さ9mもあり、広さを感じる閾値「7m」を余裕で超え、リビング入口に立って対角線上の奥に凛と立つアオハダ(目止めのシンボルツリー)を眺めると、「あ!これ広い」を実感できる工夫。
こうして成立した内外一体空間は、北から南に、Kitchen -内Dining-外Diningという自然な導線が引かれ、7-8人が集まるミニ・パーテイーも開催できる素敵な空間構成です。又リモートワークにも適用できるように、お好みに応じ、晴れた日は一方を食事寛ぎ用に、他方を仕事用に使い分けたり、お二人の仕事ゾーンを内と外に分けることもできます。

夏の強い日差しを避けるターフ、蚊をシャットアウトするパーゴラ上の蚊よけ網戸システム、夜間の外ダイニングを明るく照らすスポットライト、外Dining用の5点セット(テーブル+椅子4脚)等々、オールシーズン・オールデイで快適なアウトドアライフが楽しめるよう整備しております。
又、プライバシーにも注意を払い、西棟と東棟は高さ200cmの中央壁で仕切られています。
<2Fのテーマ>
--第二の地平線を楽しむ広いベランダ—
201
202

広さ12畳の2FのLDKの南面には、幅3mの特大窓ガラスの南面に広がるウッドデッキから屋上へ登る白の階段が用意され、それを上りきると、そこには広さ17畳の特大「自由スペース」が出現します。一旦屋上に昇ると、そこは別世界。周囲の家々の屋根と木々の頂をつなぐ雄大な第二の地平線が広がり、東棟からは朝陽が昇る瞬間を、また西棟からは夕日が沈む瞬間を眺められます。
広い屋上には、夏の強い日射を遮る三角ターフ2枚、また屋上での水利用に便利な水栓とシンクスロップ、夜間の外ダイニングを演出するブラケットライトや間接ライン照明、外Dining用の5点セット(テーブル+椅子4脚)、お二人でゆっくり寝そべるリクライニングチェア等々が標準装備され、ルーフバルコニーでの快適なアウトドアライフを支援しています。
又、プライバシーにも注意を払い、西棟と東棟は高さ225cmの中央境界壁で仕切られ,又「自由スペース」と「サービスエリア」を隔てる北仕切り壁は高さ195cmあり、「自由スペース」にとりあえず必要のないものを「サービスエリア」に置いておけます。

CLOSE

地球のSustainabilityを意識したHealthy快適空間の実現
LOHASの精神性は、そこに住まう人たちにとって快適であることが、同時に社会全体にとっても善であることを志向します。
MORE

Forest Court ASAGAYAでは、
・真冬(東京の真冬1月下旬の過去平均最低気温は2度。)就寝前に22度あった室温が、就寝中に暖房をオフにしても、翌朝起床時には11-12度程度を下回らないように、
・真夏の日中の最高気温が34度程度(東京の真夏8月上旬の過去平均最高気温は31度。34度を超えることはほとんどない。)までなら、冷房はつけず除湿のみでも十分過ごせるように、という目標を設定し、生活環境設計を行い実現させました。
一般賃貸マンションでは採用されることが余りない以下の5つの設計要素を盛り込むことが、その目標の実現に寄与しています。
①「外断熱方式」とは
②断熱サッシ(=「樹脂サッシ」)の採用
③直射日光の有効遮蔽と有効利用方式
④熱交換型の換気
⑤「吸排気同時型」レンジ換気フード
FCAは、無駄なエネルギー消費と、CO2排出量を最小化する社会的目的を追求しつつ、同時に夏涼しく冬温かい岩の洞窟の中に1年中住んでいられるようなLOHASな生活環境を提供する課題に真正面からまじめに取り組んでいます。
PS.5つの設計要素が如何に体感温度に影響するかをアカデミックな概念で説明した内容については、こちらをご覧ください。
01. 「外断熱方式」とは
外断熱方式とは、文字通りコンクリート壁躯体の外側に分厚い断熱材を貼り付け、外気温により室内温度が極めて影響されにくい断熱方式です。壁外には厚み7cm、1F床下には厚み22cm、屋上面の上には厚み10cmにもなる高性能断熱材を切れ目なく貼り、建物全体を魔法瓶のようにすっぽり包んでいます。そのため、夏の暑い日射熱、冬の冷え込みの影響が驚くほど抑えられる構造です。この構造のお蔭で、電力をさほど使わずとも、夏は涼しく冬は温かい岩の洞窟の中に1年中住んでいるような感覚に近い体験をしていただけます。
賃貸マンションでは、一般的にコンクリート躯体の室内側に断熱材が貼られている内断熱方式が広く採用されます。この方式の場合、内断熱材の厚みを厚くすると、逆にマンション室内の広さを犠牲にしてしまうため、特に賃貸マンションに限ると、通常室内側の断熱材の厚みが3cm程度に抑えられています。その結果外気の影響を受けやすく、エアコンを高強度で長い時間稼働させることになります。(但し分譲マンションの場合は、内断熱でも断熱材の厚みを5-7cm程度に十分厚くする物件は昨今ある程度でて来ており、その場合は内断熱方式でも高い断熱効果が発揮されます。ただ、賃貸マンションの場合は、広さを優先させるあまり内断熱層が薄くなりがちで、結果断熱効果が低くなりがちです。)
更に当物件で採用されている外断熱方式のもう一つのメリットは、分厚い断熱材の内側にコンクリ―ト構造躯体があるため、壁、床、天井は全体として室内に輻射熱を及ぼす熱の蓄熱層として働き、夏一旦冷やした室内環境、冬一旦温めた室内環境が維持されやすくなります。
このメリットは内断熱方式では享受できません。多くの賃貸マンションの場合、薄い内断熱層の外側に外気温に直接接する構造躯体がありますが、その構造躯体は外気温の蓄熱層として薄い内断熱層を通して内側に影響を与えやすくなるため例えば、夏の晩、外気温は下がってきているのに、建物自体が昼の日射で温まったまま、構造躯体の熱が薄い断熱材を通じ内部に侵入して夜でも相当冷房を付けざる負えないことになる一方、逆に冬、早朝の超低温まで冷え込んだ外部躯体が午前中急には温まらないため、その影響が、薄い壁を通じ内部に入り込み、暖房を相当高く設定している割に、なかなか室温が上がってくれないという結果も生じます。

02. 断熱サッシ(=「樹脂サッシ」)の採用
一般的なマンション(賃貸も分譲も含め)では、窓サッシには、「アルミサッシ」を使っています。アルミは金属で熱伝導率が高いため、外気温をそのまま室内に伝える「非断熱」仕様のものです。例えば真冬、外気温0度であれば、室内側のアルミ製の窓枠及び窓フレームもその0度の温度を直接室内側に熱伝導します。つまり室内に札幌雪祭りの大きな氷を置いて暖房をかけているようなものです。いくらエアコンを高温で設定しても、次から次に0度のアルミ製の窓枠及び窓フレームから熱を外に奪われてしまいます。冬、暖房を効かせたお部屋でアルミ製の窓枠及び窓フレームに触ると、本当に氷のように冷たい経験をされた方は沢山いると思われます。
それに対し本物件では、ハイブリッド型「断熱」サッシ、Lixil.PRESEA-Hを採用しています。これは、図2にあるように、窓の外側は強度・耐久性に優れた「アルミ」を、窓の内側は、アルミに較べ熱伝導率が1000分の1と低く断熱性に優れた「樹脂」をそれぞれ使用したハイブリッド構造です。すなわち外気温をそのまま室内には伝えない「断熱」サッシです。真冬、室内でサッシに手をあてても冷たくありません。アルミサッシの場合、せっかく暖房して暖めた室内の熱が、アルミ製の窓枠及び窓フレームからドンドン外に奪われ、なかなか温まらない上に、暖房費は浪費するということになりますが、Lixil PRESEA-Hでは最小限の光熱費で済む上に、実際に感じる「体感温度」は非常に良好となります。

樹脂サッシの、ガラス部に関しては、通常のアルミサッシでも一般に採用されてきているLowE複層ガラスを採用していますが、複層ガラスに挟まれた断熱層として機能する空気層の厚みは、一般的な6mmではなく倍の12mmと断熱機能を強化しています。更に外側ガラスの内側に特殊金属コーテイングを施し、外から必要な輻射熱のみ取り入れつつ、室内から外への輻射熱を逃がさない仕様を採用しています。

更に玄関ドア及びドア枠についても同じ「断熱」仕様の考え方で、外気温が室内にダイレクトに熱伝導する可能性を最小限に食い止める工夫をしています。
03. 直射日光の有効遮蔽と有効利用方式
暑い夏は、冷房のため太陽の日差しは避けたい対象ですし、逆に寒い冬は、暖房のために太陽の日差しは上手に利用したい対象となります。
太陽南中時高度の夏至における78.4度と冬至における31.6度の差を利用し、図4にあるように、夏は庇で強烈な日差しを避け、逆に冬は外部からの日射熱を積極的に利用する工夫を当物件ではしています。寒い冬、直射日光のダイレクトゲインを室内暖房に利用するため、LDK南面のガラスだけは日照取得率を60%と、その他の西、北、東の各面のガラスの取得率40%よりは意図的に上げています。
このことは、逆に夏場の暑い時期は日照取得率がLDKの南面は高く、夏の冷房にはマイナスという意味合いをも持ちますが、夏の日差しは南中高度が高いので、庇で直射日光を遮ることができる他、2FはLixilスタイルシェード、1Fはターフを利用して更なる日差し避け対策が取れるようにしています。

04. 熱交換型の換気
どのようなマンションでも壁に換気口がついています。しかし、一般のマンションにある換気口は、「非熱交換型」というタイプで、一般に広く認知されていないことですが、これには大きなデメリットがあります。
「非熱交換型」とは、外気と内気が熱交換をせずに換気口を通じて入れ替わる方式です。夏せっかく冷やした室内の空気も、また冬せっかく暖めた空気も、それぞれ2時間もすると換気口を通じ外気と総取り換えされ捨ててしまうという非効率なことをしています。室内で冬、換気口の近くに手をあてると、外の冷たい空気が入ってくるのがわかりますし、夏換気口の近くに手をあてると、外の温かい空気が入ってくるのが良く分かります。
これに対し,当マンションは、換気はするが熱ロスを7%に抑えられる断熱先進国ドイツ製の「熱交換型」換気口、「せせらぎ」を採用しています。LDKに1カ所、寝室に1カ所と合計2か所に設け、この2か所の換気口を電気的に連動させ其々が70秒毎に吸気と排気を交互に繰り返します。其々の換気口には熱を回収できる「蓄熱エレメント」というセラミックが内蔵され、室内空気の熱が7%しか奪われない仕組みになっています。
その仕組みは、「蓄熱エレメント」というセラミックが、吸熱と排熱を繰り返すことで、室内から室外に漏れる熱ロスを最小にするものです。

上図、図5をご覧ください。例えば冬、寝室の換気口に注目すると、室内の暖めた空気が換気ファンに押し出されて70秒間排出されます。この時、ファンと外気の間に位置する「蓄熱エレメント」は、空気を排出しつつも、室内暖気の熱を吸熱するため、捨てられる熱は抑制され、他方、「蓄熱エレメント」自身は吸熱により温度が上昇します。排気の70秒間が過ぎると、ファンは逆回転で室外から吸気し始めます。今度は先ほど排気中に一旦温度上昇した「蓄熱エレメント」から、冷たい外気が吸熱し、吸い込まれた冷たい外気を暖めるとともに、「蓄熱エレメント」自身は排熱し、温度は下降し、吸気70秒後には、140秒前に排気し始めた時の蓄熱量とほぼ同じ水準まで戻ってきます。時間の経過と、蓄熱エレメントの熱量(又は温度)の関係をグラフ化すると上図のようになります。吸気排気が2か所の換気口で交互に繰り返されるため、室内に負圧等が生じないようになっています。
(「せせらぎ」の詳細は https://passivenergie.co.jp/ をご覧ください。)
05. 「吸排気同時型」レンジ換気フード
当マンションでは、「吸排気同時型」を採用しており、排気口から排気している時は吸気口の弁が開いて外気が流入しますが、排気していない時は吸気口の弁は完全に閉じ、排気口は「電動密閉式シャッター」で閉ざされ、外気が逆流入することは基本的になく、冬暖めたり、夏冷やしたりした室内の空気を不必要に捨ててしまう無駄を防止できます。他方一般的な「排気専用型」レンジフードの排気口に採用されている「風圧式逆風止めシャッター」の場合、外の風圧により弁がパタパタと動いてしまい、冬は冷たい外気が、夏は暖かい外気が入り込むことは結構あります。その意味で、「吸排気同時型」の「電動密閉式シャッター」の場合は、熱ロスが最小に抑えられていると言えます。
<5つの設計要素が体感温度に与える影響の学術的説明>
5つの設計要素が体感温度に与える影響を整理すると以下のフレームワークに集約されます。
建物内における体感温度は、以下の方程式であらわされます。
体感温度={「a:室内気温」+「b:輻射熱」}/2 …式1で一般的に表現されます。
これを、より具体的でわかりやすい表現に変換すると、
体感温度={「A:室内空気の外気による希薄化防止効果」+「B:建物外皮からの熱ロス防止効果」}/2 …式2という表現ができます。
5つの設計要素のうち①外断熱方式、と②断熱サッシ(断熱ドア)の仕様は、式2の「B:建物外皮からの熱ロス防止効果」を狙ったものです。③の夏冷房時に、庇や、テント、スタイルシェードで太陽直射熱の室内への侵入を抑えたり、逆に冬暖房時には太陽直射熱をパッシブに利用しようとする試みは、「建物外皮からの熱ゲイン(輻射熱)」を夏は遮断し、冬は逆に積極的に利用する働きであり、式1の「b:輻射熱」の範疇に分類される働きと言えます。
他方④熱交換型換気口、⑤吸排気同時ガスレンジ換気扇の要素は、「A:室内空気の外気による希薄化防止効果」を狙った要素と言えます。
尚、当マンションでは、「断熱等性能等級に関する設計住宅性能評価」を2020年4月に取得しており、「B:建物外皮からの熱ロス防止効果」の性能、即ちUa値(外皮平均熱貫流率、率が低いほど熱ロスが少ないことを意味する。)に関しては1階各室(101、102)で、0.48の評価、2階各室(201,202)で、0.54の評価認定をいただいております。
Ua値(東京地域(6地域)における外皮平均熱貫流率)の水準を表す表1を以下に示します。
表1

1階各室のUa値0.48も2階のUa値0.54もともにG1レベルで、東京地域における次世代省エネルギー基準(将来的に義務化される予定の基準。2020年以降設定されるはずであった基準だが、その施行が延期されている。)である0.87の基準を大幅に超えており、熱ロス防止効果が著しく高いことを示しています。
以下の表2及び表4に示されているように、冬場通常の暖房(表2参照)を利用する前提では、表4に出ているように本物件が該当するG1(0.46<Ua値<0.56)グレードでは冬場の最低の体感温度は10度を下回らない水準が維持されることを示している。また1FのUa値=0.48はG2の基準0.46に接近しているため、G2において冬場の最低体感温度が13度に近いという状態に限りなく近づくことを意味しており、冬場の最低体感温度として12度程度を下回らない水準は維持されることが推定できます。
表2:想定する暖房方式

表4:冬期間の最低の体感温度(表2の暖房方式におけるシミュレーション)

更に冷房時の平均日射熱取得量率は、1階が2.03-2.04, 2階が2.09-2.11ですが、これは6地域の冷房時の平均日射熱取得量基準2.8に対して、それぞれ約27%、約25%抑制され全体の断熱性能に貢献しています。
CLOSE

働く二人を応援する機能性
Forest Court ASAGAYAでは、働くお二人の日常生活をより快適により楽しくさせたいという思いの下、「お掃除・お料理・お洗濯」のうち、省力化が難しい「お掃除」「お料理」の分野で、各種機能を充実させ、更に「お買い物」サポート機能も充実しました。
MORE


①お掃除の省力化
フローリング床掃除はルンバのような電気機器にお任せすれば省力化できますが、水回りの4カ所(浴槽、浴室床、洗面台、トイレ便器)については依然人力。FCAでは、水回りのお掃除を省力化させるため、これら4カ所全てにPanasonicのガラス樹脂系新素材のものを採用し揃えました。
ガラス樹脂系新素材は、素材自体に撥水性、撥油性のある素材が練りこまれているため、陶器や、FRPなど一般的な水回りの表面素材に比べ、汚れがつきにくい上、付いた汚れもこびりつかないためサッとひと拭きでカンタンに取れる特徴があり、パートナーお二人の中で、水回りお掃除を担当される方には非常に強力な味方となります。

②Kitchen環境の快適化・高機能化
キッチン活動が円滑に進むようFCAでは、Kitchenカウンターと背後のカップボードに各種機能を充実させています。
(a)ペニンシュラ型オープンキッチン
101/201
102/202
FCAのキッチンカウンターは “ペニンシュラ型オープンキッチン”を採用。広いLDK空間に、白の人工大理石の天板と,焦げ茶色ボデイーのカウンターが、開放的でスタイリッシュなアクセント家具として映えます。カウンター幅と同じ幅の淡緑色のタイルを壁に貼り、美しさに色どりを添えています。
(b)グースネック型水栓SUTTO
101/201
102/202
スタイリッシュなペニンシュラ型オープンキッチンに相応しく、水栓には森田恭通氏デザイン(”Wailea”社)のお洒落なグースネック型水栓 “SUTTO“を採用。蛇口はワンタッチでシャワーに切替でき、自由にシンクの隅々まで動き、シンクを清潔に保つ機能を備えています。
(c)スワンネック型浄水専用栓OASICS Gタイプ
共通
浄水専用栓はキッツ・マイクロフィルター社のスワンネック型浄水専用栓OASICS Gタイプを採用。家庭用品品質表示法準拠の13指定物質を効果的に除去する本格派で、入居者の健康をサポートします。
(d)SHIGERU FUNCTION SINK
101/201
102/202
・“ペニンシュラ型オープンキッチン”は、見た目は格好いいけど、カウンター上に 物を置かずに片付けられるか心配だわ!そんな心配に配慮し、キッチンシンクには”SHIGERU FUNCTION SINK”を採用。基本アクセサリーとして使える、「水切りカゴ」と「サポートプレート」を組み合わせれば、シンク内に食後洗った食器を置け、カウンター上は片つきます。
・また、基本アクセサリーの「サポートプレート」「まな板」「水切りプレート」を組み合わせれば、調理スペース幅は、40cm-65cm -81cm -107cm と4段階で拡張が可能。調理の状況に応じて調整できます。
https://www.youtube.com/watch?v=mGt2WCb4hqk
(e)シンク下Trash Management Area
共通
キッチンから出るゴミを、「捨てやすく、保管しやすく、出しやすく」することは、重要なファクター。FCAでは、シンク下の空間に敢えて扉を付けずオープンとし、そこにお好みの、フットステップタイプ、手翳し検知タイプ等々のゴミ箱を置き、ゴミ捨て前、扉を開け締めせずにカンタンに捨てられる仕組みになっています。ゴミ出しの際も、オープン空間なので、扉を開け閉めする厄介な動作が入りません。 また、Trash Management Areaは幅90cmと幅広く、増加するネット購入の宅配便から出る段ボール箱を畳んで収集日まで保管する場所としても活用できます。
(f)リンナイガスレンジDelicia
共通
リンナイの最高位機種Deliciaでは「コンロタイマーモード」・揚げ物に便利な「温度設定モード」、炒め物いり物に便利な「炙り高温炒めモード」の各種高機能が使える他、「オートメニュー」の使用で、各種定番メニュー<湯沸かし・麺茹で・煮物・無水調理・ハンバーグ・茶わん蒸し・焼き餃子等>が自動モードで調理可能になります。「+R RECIPE」をスマホにダウンロード、コンロとBluetoothでペアリングすると、食のプロ監修のレシピに沿った調理データをコンロに送信。点火ボタンを押すと火加減お任せで調理が始まります。又付属品として、ザ・ココット、ココット・プレートをお使いいただけ、調理の幅を広げます。
https://rinnai.jp/app/plusrrecipe/
(g)蒸気排出機能付きスライド棚
共通
引出式の棚は蒸気排出機能付き。収納したままでも、炊飯器や、電気ポットの湯気を逃がし、キャビネットの劣化を防ぐ一方、炊飯をセットしたり、ご飯を装う際は引き出すこともでき便利です。
(h)引出収納と観音開き収納
101/201
102/202
腰下収納は全て引出、上部収納は全て観音開きとし、整理、収納、取出しが、しやすい設えにしました。
CLOSE

Semi-Furnishedという発想
Furnished(ファーニッシュド)という言葉は聞きなれないかもしれませんが「家具付」という意味です。洋画でよく見るように、欧米のアパートなどはほとんどがFurnishedです。
MORE

これに比べ、日本のマンションは家具と呼べるもので標準でついているものは下駄箱、洗面台、キッチンカウンターぐらいのもので、それ以外は「スペースに合わせてお好きなものを」というわけです。これは良く言えば「自由」でいいのですが、部屋ごとに購入した家具はその多くが次の引越しの際にサイズや色が合わないなど、結局無駄な出費になりがちですし、そうなると購入に消極的になるのは自然です。
FCAでは、当マンションに固有の部屋の寸法に合わせてピッタリサイズが決まってくる様な「壁付け家具」に限り、Furnishedの概念を導入しました。即ち「Semi-Furnished」スタイルです。


①W.I.C(ウォーク・イン・クローゼット)
101/201
102/202
寝室付設のW.I.Cは約2畳の広さがあります。引戸を開けると、幅約75cm、奥行き約150cmの中央通路があり、衣類収納家具としてIKEA PAX(外寸:幅75cmx奥行58cmx高さ201cm)が片側に2個、その反対側の出入口側に1個と、合計3個設えてあります。IKEA PAXのガラス・フェースの白の引出は、全体で9個あり、外から見えて取り出しやすく清潔感溢れます。アクセサリー・トレイも2段つきジュエリー・アクセサリー・その他小物用の収納に役立ちます。又、反対側の奥側(出入口側から遠い側)には、可動棚(棚板最大6枚)の自由収納スペース(内寸:幅約71cmx高さ210cm)があり、掃除機、書類、本等々が収納できます。更に、床上210cm以上の高さには天井収納棚(高さ1F:51cm・2F:57cm)があり、季節外れの衣類、寝具,使用頻度の低い物の保管場所等にお使いいただけます。中央通路の正面には、姿見鏡があります。(天井棚にアクセスするために4段脚立も標準装備しています。)
②カップボード収納
共通
一般の賃貸マンションのキッチンは、シンク・調理台・ガスレンジを含むキッチンカウンターだけ備え付けで、その周囲で必要となるカップボードは、与えらえた空間に冷蔵庫の大きさと調整しながら各自揃えるのが習わしです。しかしこのやり方は3つの問題を生みます。
1)偶々揃えたカップボードは寸法的に次の引越し先では上手くフィットしないリスクを負います。
2)既成品は機能が限定されており、炊飯機からの蒸気を自動で逃がす「蒸気排出機能付きスライド棚」がついたものなど存在しません。
3)既製品の中から、意匠上もフィットして、寸法まで合わせるとなると相当困難です。
FCAでは、キッチンカウンターの背後のスペース幅を、冷蔵庫用に幅73.5cm(大人2人+幼児1人の生活者を念頭に置き、幅最大68.5cm (容量400-450Lクラス)のフレンチドア型冷蔵庫まで対応しておけば十分と判断。)を割き、それ以外の幅約118.5cmを全てカップボード用に充てています。カップボード下段には自動で炊飯器の蒸気を排出する蒸気排出機能付きスライド棚を設置した他、使う人に圧迫感を感じさせないように、上段棚のファサード面は、下段面に比べ8cm背後に後退させています。色は、壁紙と同じ白を基調とし、部屋全体に同化させ、一般的な白の冷蔵庫を選んでいただけると全体の色調が調和することを意図しています。
③TV台
101/102
201/202
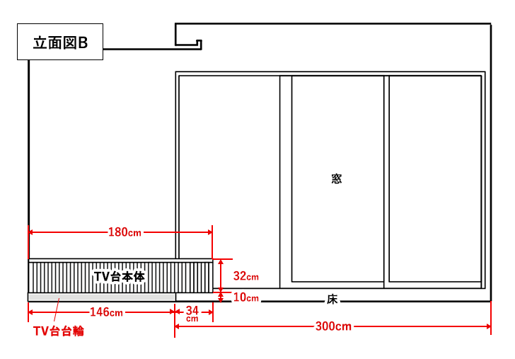
平面図Aを見てわかるように、リビング空間の目玉=「外に大きく開かれた幅3mの特大窓」を設定すると、TVエリア側に残る壁幅は146cmしか残りません。他方、TVエリアの東西幅(=169cm)を考慮すると、意匠的にしっくり納まるTV台幅はそれを若干上回る180cm程度必要。残る壁幅143cmに対し、TV台幅が180cmだと、差し引き34cm分TV台が特大窓と重複干渉してきます。この問題を解決し意匠的に美しくまとめるため、立面図Bを見てわかるように、TV台(高さ42cm)の台輪部分(高さ10cm)の幅は特大窓に干渉しない146cmに合わせ、床から10cm浮き上がったTV台本体のみを34cm分せりださせて幅180cmにしています。
④トイレ手洗いニッチ上の収納棚
101/201
102/202
トイレの手洗いニッチの上部には内寸で幅約35.5cm、奥行き約24cm、高さ約39cmの収納棚がついています。内部は2段の棚板で3段に仕切られ、1段には6個のトイレットペーパーが縦置でき、2段使うと12個入りパックを全部収納できます。残る1段には、その他サニタリー用品が置けます。
CLOSE



”Authentic Designer’s Mansion”というグレード
不動産屋さんの店頭には結構多くの「デザイナーズ・マンション」と題した物件情報が並びます。確かにそれらは全てどちらかの一級建築士がデザインされた物件で、「プレハブメーカーの物件ではない」という意味で「デザイナーズ・マンション」と言えなくはないのです。
MORE
株式会社ア・シード建築設計
並木秀浩
1960年 東京都生まれ
1983年 日本大学卒業
1993年 ア・シード建築設計事務所設立
1998年 (株)ア・シード建築設計 改組
- 出演情報
-
・劇的ビフォーアフター
「老後が寂しい家」 2003年5月25日
「湯気でくもる家」 2005年1月23日
「冷蔵庫の扉を閉めて入る家」 2011年11月20日
「お風呂が後回しになった家」 2013年1月20日
・辰巳琢郎の夢リフォーム 2004年
・渡辺篤史の建物探訪 2005年
・住まいの極意~My Sweet Life~ 2005年 - 受賞歴
-
(株)INAX主催デザインコンテスト・奨励賞、住宅エクステリア部門入賞、住宅インテリア部門入賞、東京都墨田区主催優良景観表彰・まちなみ建築賞、ぐんまの家設計コンクール 入賞
2014年 埼玉建築文化賞 最優秀賞
が、しかし「プレハブメーカーの物件ではない」=「デザイナーズ・マンション」なのか? もしこの等式が、社会一般の通念であると仮定すると、当マンションは、”Authentic Designer’s Mansion”(正真正銘のデザイナーズ・マンション)という新しいカテゴリーに属する物件で、社会通念上の「デザイナーズ・マンション」とは一線を画するグレードです。
意匠性というものは、絵や彫刻、音楽と同じく芸術です。 芸術について検討のつかない人からみると、「意匠性とか言ったって結局感性的なもんで、雲をつかむようなもの。誰が設計しても違いなんて大してわからないんじゃない。」ということかもしれません。
しかし、空間を気持ちよい空間に仕立て上げる感性には、視るもの全てのものの美しさについて「これは何故美しく心地良いか」、視るもの全ての醜さについて「これは何故醜く不快か」といった空間認識に関する普遍的経験値の引出を膨大に持ちつつも、その引出に埋もれることなく、クライアントの志向する空間嗜好性、その場・環境の与えるギフトを認識し、神から降りてくるメッセージを直感的に右脳で表現しつくせる能力が必要とされます。このような能力の査定は1級建築士資格取得試験においてスクリーニング基準とされることはなく、あくまで個々の建築士のもって生まれた天賦の才能と努力と経験で獲得される能力です。履歴書には表現できないこの「X」の能力は、言葉で表現しずらい「何か」ですが、決して「ない」わけではなく、確かに「ある」のです。
それは、勝てる裁判も、「持ってる弁護士」に頼まなければ勝てないし、成功する手術も「持ってる外科医」にあたらなければ成功しないのと似ています。国家試験で定めた資格を持っているかではなく、その上で「X」をもっているか否かが鍵を握ります。
Forest Court ASAGAYAを設計されたア・シード建築設計の並木秀浩先生は、外部空間と内部空間を連続一体空間としてとらえて美しく見せる能力に優れた先生ですが、TV番組「大改造! ! 劇的ビフォーアフター」に4度出演されている一級建築士の先生でもあります。言葉に表現しずらい「X」の能力を持った方です。「その美は何故美しいのか」その問いかけだけにひたすらこだわる「美の匠」と言えます。
巷にあふれる「デザイナーズ・マンション」の大多数が、いわば「なんちゃってDesigner’s Mansion」であれば、並木秀浩先生の手掛けたForest Court ASAGAYAは、「Authentic Designer’s Mansion」(「正真正銘の」=Authentic)というべきものと言えます。そしてそれは、見ていただければわかる世界でもあります。
株式会社ア・シード建築設計
並木秀浩
1960年 東京都生まれ
1983年 日本大学卒業
1993年 ア・シード建築設計事務所設立
1998年 (株)ア・シード建築設計 改組
- 出演情報
-
・劇的ビフォーアフター
「老後が寂しい家」 2003年5月25日
「湯気でくもる家」 2005年1月23日
「冷蔵庫の扉を閉めて入る家」 2011年11月20日
「お風呂が後回しになった家」 2013年1月20日
・辰巳琢郎の夢リフォーム 2004年
・渡辺篤史の建物探訪 2005年
・住まいの極意~My Sweet Life~ 2005年 - 受賞歴
-
(株)INAX主催デザインコンテスト・奨励賞、住宅エクステリア部門入賞、住宅インテリア部門入賞、東京都墨田区主催優良景観表彰・まちなみ建築賞、ぐんまの家設計コンクール 入賞
2014年 埼玉建築文化賞 最優秀賞
CLOSE

意匠性の追求
Forest Court ASAGAYAを「Authentic Designer’s Mansion」(「正真正銘の」=Authenticたらしめる要素は建物に無数に散りばめられていますが、主なものは下記に集約されます。
MORE

(A)気品溢れるファサードとエントランス
・傾斜屋根と「奥まった窓」の醸す陰影の上質感:エリアとの調和
共通
阿佐谷北5丁目は今もなお屋敷が残る落ち着いた雰囲気を残すエリアです。その落ち着きに調和するように、道路側の屋根は壁パラペットスタイルではなく傾斜屋根を採用し、軒下の陰影の落ち着きをデザイン。窓もマンション建築でよく見られる「外壁同面サッシ」ではなく、外壁より9cm奥まらせたサッシ面を形成して陰影を強調しエリアに調和する建物の上質感をデザインしました。
・Human Scale感のある白の縦鉄格子面
共通
傾斜屋根と階段は白の鉄格子で縦に結ばれていますが、縦格子だけでは無機質になりがちな風情です。短めの白の横格子を3か所リズム良く設えてHuman Scaleを感じさせるデザインです。
・曇りガラスの効用
共通
建物の道路側の1Fベランダ塀と、2F手摺は全て曇りガラスを採用しています。曇りガラスは昼間は、北寝室に優しい光を取り込む役割を果たす一方、夜間は、光が灯ると住居に「温かさ」を感じさせる効果があります。
・光と影の奥行き感を視線に感じながら上昇する2Fアプローチ階段
201
202
2Fへのアプローチ階段は、白の鉄格子が創り出す光と陰影の連続性をパースペクテイブできる設計です。
・焦茶のスチール壁と足元の玉龍の緑で誘いこむ1Fアプローチ
101
102
1Fへのアプローチは、焦茶のスチール壁と足元の玉龍の緑で奥深く誘う設計です。

(B)畳数以上に広さを感じさせるLDK
FCAのLDK(内部空間)はそれだけで12畳ある「普通」にゆったりな空間です。しかしその「普通」に満足することなく、12畳の畳数以上に広さを感じさせる工夫を3つしています。
(第1の工夫)LDKは白基調の全体空間に対し、敢えて異質性際立つ色・濃焦茶ボデイーのキッチンカウンターを置くことで、キッチン・カウンターが「壁」ではなく「置き家具」と認識され、キッチンの向こう側と此方側が隔たりをもたない一体空間として感じられる効果を意図しています。101/102
201/202
(第2の工夫)広さに相応しい高さを確保することにより、意図した空間の「広さ」が実感できます。1Fの場合、LDK・内部空間(12畳)と南専用庭・外部空間(7.5畳)の融合空間は広さ19.5畳と特大です。その特大の広さを十分実感できるように、内部空間は南専用庭と比べ1段分(18cm)低く掘り下げ、天井高を273cmとする一方、専用庭のパーゴラの高さも256cmと十分高く設定しています。他方、2Fの場合、LDK・内部空間(12畳)の先はベランダと階段で、ルーフ・バルコニー(17畳)は視界に入りません。12畳のLDK空間を広く感じさせるに十分となるよう、天井高は通常より若干高い255cmに設定しています。共通
(第3の工夫)創って(=Kitchen)、食べる(=Dining)「アクティブ」空間は一段高い天井で幅3mの大窓で外部に開かれ、対する座ってTVを見る「籠り」空間は一段低い天井で窓は存在せず、LDK全体の中にメリハリをつけ「広さ」が認識されやすい工夫をしています。101/102
201/202

(C)LDK(内部空間)と南専用庭(外部空間)の一体性の実感化(1F)
101
102
1Fリビングの特徴は、リビング眼前に広がる南専用庭(約7.5畳)とLDK(約12畳)を統合した内外空間(合計19.5畳)の一体性にあります。その一体性が効果的に実感できるよう3つの工夫を凝らしています。
(第1の工夫)内部と外部の境目に幅3mの特大窓を設け、その3m幅で奥行最大3.8mまで南専用庭が深く広がり「広い外空間」に意識を向かわせます。
(第2の工夫)3m幅特大窓の枠を濃焦茶色に、外部空間を囲む塀も濃黒色にと、濃い色で統一感をもたせることにより、黒・焦茶基調の「額縁」に囲われた「外部空間の絵」が、白壁の内部空間に向い引き寄せられる錯覚を覚えさせ、「内外空間の一体性」が意識されます。
(第3の工夫)内外一体空間の対角線距離は長さ9mもあり、広さを感じる閾値「7m」を余裕で超え、リビング入口に立って対角線上の奥に凛と立つアオハダ(目止めのシンボルツリー)を眺めると、「あ!これ広い」を実感できます。
こうして成立した内外一体空間は、Kitchen-内 Dining-外 Diningと自然な機能的繋がりを形成しています。リモートワークにも適用できるように、お好みに応じ、晴れた日は、二人で仕事ゾーンを分けたり、一方を食事寛ぎ用に、他方を仕事用に使い分けることもできます。

(D)ウッドデッキのバルコニーから曲がりながら上昇する白の手摺階段(2F)
201
202
空間の特性から見て「3方向と天井を構造物で囲われ南面だけが解放されたリビング空間(2F)」と、「2方向だけ構造物で囲われているが、その他2方向と天井が完全に遠くまで解放された外部空間(ルーフバルコニー)」は全く異質です。そして、内部空間(2F)から、外部空間(ルーフバルコニー)は視界に入りません。その意味で、両者を結ぶ2Fベランダから屋上へと続く階段は、「異空間への飛翔」を感じさせるデザインである必要があります。内部空間(2F)の特大窓枠の焦茶色に対しコントラスト(対照)する白色で2Fベランダから階段に移行する手摺をまとめることで、「異質への入口」を色のコントラストで表現すると同時に、2Fベランダの手摺から階段手摺へと緩やかに曲線状に連続上昇するラインを描くことで、「異質への心の移行」を準備しています。
(E)広さの中にもメリハリをつけ美しく見せるルーフバルコニー
・東西棟を隔てる中央境界壁は高さ225cm、サービス・エリアと自由スペースを隔てる北仕切り壁は195cmと高さを30cm変化させ、南から北仕切り壁を見た時の奥行き感がでるように工夫されています。201
202
・屋上手摺も内側に傾斜をつけることで、Humanでお洒落な感覚を醸しています。201
202
・「2Fから昇ってくる階段手摺」と「屋上の手摺・壁」が「のっぺら」と一続きにならないように、両者間に色・位置・形の変化をもたせメリハリのある美しさを演出しています。201
202

(F)ホテル・ライクな寝室
101
102
201
202
寝室は優しい光の差す北側を利用した空間で、ベッドヘッド側壁と天井をBlueにその他をWhiteで纏めたBlue&Whiteの色彩変化は清涼感を醸します。窓とベランダも、1Fは、白壁から焦茶色の額縁で切り出された絵のように見える意匠性を、2Fは壁と同調する白系を窓枠と手摺の曇りガラスに適用する一方、白と対照する焦茶をウッドデッキと手摺欄干に使い、「外部との境界」を「より外側に押し広げる」意匠性を意図しています。エアコンも出入り口上部に完全にビルトインされスッキリ空間を演出します。夜間は、ベッドフット側壁を上から照らす間接照明を施すと、まさにホテル・ライクな寝室シーンを演出できます。

(G)白の便器とニッチが浮き上がる癒しのトイレ空間
101/201
102/202
淡グレーの壁・天井・床に真っ白な便器と手洗いニッチが浮き上がるシックなトイレ空間です。手洗いニッチの棚の上下に仕込んだ間接照明で、「癒しの空間」を演出します。
(H)間接照明による「癒し」と「優しさ」の空間演出
FCAでは、随所随所で間接照明を利用し、「癒し」と「優しさ」を演出しています。
・各戸部屋番号・銘板・外部インターフォンを照らすブラケット
101
102
201
202
・2Fアプローチ階段のフットライト201
202
・寝室ベッドフット側壁を照らすライン照明101/201
102/202
・1F寝室バルコニー床を照らすブラケット101
102
・2F寝室バルコニー床を照らすフロアランプ201
202
・トイレニッチ収納の上下から照らす101/201
102/202
・ダイニング天井を照らすライン間接照明101/102
201/202
・屋上アプローチ階段のブラケットとフットライト201
202
・屋上壁の4個のブラケット201
202
・屋上手摺足元の床を照らすライン間接照明201
202
CLOSE

細部へのこだわり
美術や工芸の世界では、「美は細部に宿る」といいますが、住まいの場合でも「ありがたい。なんだか心地よい」と感じる背景には、細部にこだわる工夫と配慮が施されています。
MORE

Forest Court ASAGAYAでは、次のように細部にこだわりました。
①玄関先をズバリ監視する監視カメラ
101
102
201
202
全住人が出入りする共同エントランスがある所謂「共同住宅」形式とは異なり、FCAは各戸が個別に戸建てのようなエントランスをもつ「戸建」形式です。従い、一般「共同住宅」では全体のエントランスに監視カメラが1台設置されているのに対し、FCAでは各戸の玄関口に1台づつ監視カメラがあり至近距離で玄関先を見張っています。外部インターフォンをならす瞬間に入居者は来訪者を内部インターフォンの画面で確認できますが、更にドアを開け来訪者を目の前にするその瞬間の映像記録を至近距離で残します。従い、共同住宅の監視セキュリテイーよりも更に監視が強化されています。
②遠隔地からエアコン管理、湯張りができるIoT機能
共通
「Daikin Smart APP」をスマートフォンにダウンロードし、Wifiルーターと所定の初期設定を行うと、外出先からエアコンをコントロールできます。また、「どこでもリンナイアプリ」をダウンロードいただくと、外出先から湯張り等の操作が可能の他、スマートスピーカーからの操作もできます。
③浴室が音響スタジオに変身
共通
浴室の点検口の裏側に音響ピーカーがついており、点検口の蓋を振動させ浴室で音楽が楽しめます。音楽携帯端末とBluetoothで同期をとるとお好みの楽曲を楽しめます。
④「炭素埋設」と「すこやかポット」の結界―土地の「イヤシロチ」化
ストレスの多い仕事から帰り、翌日また元気に仕事にでるため、家は元気のでる「イヤシロチ」であって、元気を奪う「ケガレチ」であってはなりません。「イヤシロチ」は大地にあるプラスとマイナスの電気が高密度で存在し、バランスがとれた状態ですが、その実現のため、Forest Court ASAGAYAでは、敷地中央地下1.7mから2.2mの深さに直径1m厚み50cm程の金粉入りの炭の層を作り(炭素埋設:図A)又、更に、敷地4隅、建物1F床下4隅、2F天井裏4隅と合計12カ所に「すこやかポット」(炭と水を入れた卵形状の陶器:図B)を設置し互いに共鳴しあう炭結界を張っています。イヤシロチ化は、軽やかで爽やかな波動を住まう人に与え癒します。
⑤蚊避け対策;パーゴラ網戸システムとマイナスイオン発生装置
温暖でアウトドアライフが営みやすい5月GWから10月下旬までは、蚊が出る時期でもあります。蚊を気にせずにアウトドアライフを楽しんでもらうため、FCAでは2つの対策で対応しています。
(a)埋炭とマイナスイオン発生装置共通
蚊はプラスイオンに惹かれてやってきます。従い、蚊を減らすためには、その土地を「イヤシロチ」化する、すなわちマイナスイオン・リッチな状態に変える必要があります。
当物件では、「マイナスイオン発生機」を2か所に設置し、地表面のプラスイオンを積極的に地中に流し込むと同時に、炭素埋設(敷地中央地下1.7mから2.2mの深さに直径1m厚み50cm程の金粉入りの炭の層を形成)を実施し、地表面(帯電層)に滞るプラスイオンを地中深くを流れる地電流に捨て去ることで地表面のマイナスイオンを豊富にしています。
(b)パーゴラ網戸システム共通
直接的に蚊の侵入を防止する目的で、南専用庭の塀の上全体を白いパーゴラで覆い、そのパーゴラの上と横に、アルミサッシの網戸を被せ固定しています。(網戸は、不動産管理会社の費用にて、4月末に取り付け、10月末には取り外させていただきます。)
⑥日避け対策;日避けターフ(1F)・Lixil スタイル・シェード(2F)・三角ターフ(屋上)
日避けターフ(1F)
Style Shade(2F)
三角ターフ(201屋上)
三角ターフ(202屋上)
夏の強い陽射しの中でも、快適なアウトドアライフ、涼しい室内ライフをエンジョイいただくため、各階の日避け対策を充実しています。
⑦ダクトレール共通
ダイニングの雰囲気づくりに食卓を照らす照明のチョイスは重要です。ダイニングテーブル置場の頭上にダクトレールがつきお好みのライトをお選びいただけます。
⑧ピクチャーレール共通
ダイニング西面と寝室ベッドフット側の2か所にピクチャーレールがあり、お好みの絵画、ポスターを生活シーンの一部に取り入れていただけます。
⑨着脱式物干しポールフック
リビング室内
2F南ベランダ
・浴室乾燥機、外物干し以外に、LDK内に室内物干しエリアがあり、天気が気になる日も安心して出勤・外出できます。
(3m幅特大窓の内側約35cmの位置に150cmの間隔で「着脱式物干しポールフック」の設置が可能です。1Fは、床上190、199,208cm、2Fは床上172,181,190cmに竿が渡せます。)
・2F南ベランダ天井にも180cmの間隔で「着脱式物干しポールフック」の設置が可能です。(床上約185cmに竿が渡せます。)
⑩姿見鏡共通
W.I.Cの通路奥と玄関の下駄箱前に「姿見鏡」があり、身支度時・外出前のセルフチェックに役立ちます。
⑪キッチン・カウンター・コンセント共通
キッチンカウンターの上で、ジューサー・ミキサー等々電気製品を使う場合に必要なコンセントをシンクの手前に設えています。
⑫油飛び防止ガラス・フェンス共通
ガスレンジで揚げ物・炒め物をして油が飛散してもダイニング側に飛ばないようにガラス・フェンスが設置されています。
⑬4段式脚立共通
エアコン・換気システム「せせらぎ」のフィルター掃除時、日除けテント・ターフ設置取り外し時、またW.I.C天井棚アクセス時、高いところで安全に作業できるように、4段式の脚立を標準で備えています。
⑭アウトドア5点セット
101
102
201
202
各室にアウトドア5点セット(直径80cmのテーブル+椅子4脚)を標準装備し、アウトドアライフをサポートしています。
⑮リクライニング・チェア(2F・屋上)
201
202
リクライニング・チェア2脚を標準装備し、屋上でのアウトドア・ライフの幅を広げていただけます。


CLOSE





